
近几年,在房地产行业调整的同时,上海豪宅市场走出独立行情。
2025年,无论是总价3000万、5000万,还是1亿以上的豪宅,上海成交套数依然遥遥领先,其中5000万以上成交占比70%以上。这意味着每成交3套顶豪,就有2套在上海。
上海正吸引着全国高净值人群的注意。
上海各大豪宅区也争相斗艳,拿出了一个又一个优秀作品。
在其中,同时拥有“黄浦江”及“苏州河”资源的“苏河湾核心区*”,自2021年之后已多年没有新项目入市。
2026年1月30日,招商蛇口上海公司发布静安苏河湾项目预告,标志着断供5年后,苏河湾核心区终于“上新”。
从招商蛇口上海公司发布的项目信息以及我们调查了解到的情况来看,静安苏河湾项目是《静安、黄浦区苏河湾商务单元更新提升规划实施方案》中唯一一个重建类城市更新项目,紧邻“苏河阳台”,是数字国潮商务区探索开放社区建设的一部分。
随着苏河湾核心区“一河、一心、一环、两片”的更新提升规划实施,未来该片区将成为与“小陆家嘴(陆家嘴核心区)”并列的上海领衔滨水区域。
*“苏河湾核心区”指《上海市静安、黄浦区苏河湾商务单元更新提升规划实施方案》中“苏河湾商务单元”

2025年9月1日,上海市规划和自然资源局发文称上海10个试点单元更新工作已进入实质性推进阶段。
在这批次的试点中,“苏河湾”与“小陆家嘴(陆家嘴核心区)”单元同属上海“一江一河”滨水核心区,都以“激活滨水资源+升级商务功能”为核心方向,在滨水区城市更新的路径探索上高度契合,为上海两大滨水区域领衔。

如果说“小陆家嘴(陆家嘴核心区)”是黄浦江畔的摩登代表,那么苏州河畔的苏河湾商务单元(苏河湾核心区),承载着上海的“历史记忆与新生活力”。这片1.2平方公里的区域,拥有2公里蜿蜒的滨河岸线。从《上海市静安、黄浦区苏河湾商务单元更新提升规划实施方案》(下称《方案》)来看,苏河湾核心区将充分发挥苏州河滨水特色,通过“一河、一心、一环、两片”的更新,加快总部经济集聚,推进金融服务、专业服务、科技创新三大重点产业发展;促进水岸文化与艺术提升、加强滨水腹地联动、完善生活配套服务体系,打造创意研发、滨水居住、时尚商业混合的世界级滨水活力街区。
来源:上海市规划资源局“一河、一心、一环、两片”中的“一心”为“苏河阳台”。这里将打造“苏河阳台”新绿心,多维延伸苏河绿地,并融合展览、演艺、商业等多元功能。
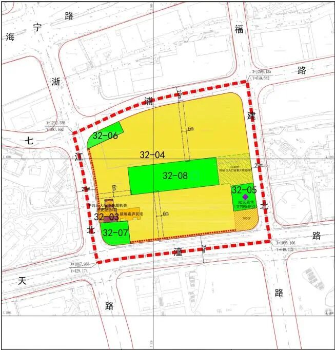
《方案》显示,苏河湾商务功能整体焕新升级重点围绕“苏河阳台”展开,其中静安苏河湾项目所在的32街坊是苏河湾商务单元(苏河湾核心区)唯一一个重建类城市更新项目,紧邻“苏河阳台”,为“数字国潮商务区”探索开放社区建设的一部分。
出让文件显示,该地块功能比例为住宅约6.57万方(69%)、文化约2.41万方(25%)、商业约0.52万方(6%)。这意味着,“苏河湾核心区”断供5年后,终于等来新的住宅项目。

来源:上海市规划资源局
目前静安苏河湾项目规划尚未公示,从2025年10月20日土拍出让时的文件及项目所在区位板块来看,该项目有以下亮点:
1、离苏州河直线距离约200米
从上海土地市场官网挂牌公示来看,静安苏河湾项目地处内环内,紧邻外滩、北外滩功能核心,南邻苏州河(直线距离约200米),南侧与黄浦区一河之隔,距离外滩约1km、人民广场约1.5km,区位极为优越。

2、同时拥有“一江一河”双重景观
静安苏河湾项目位于“一江一河”核心节点,从项目容积率来看,大概率将打造成超高层住宅,其中部分高区楼王项目势必将同时拥有“苏州河”与“黄浦江”顶级稀缺景观资源。
上海拥有“一江一河”滨水资源的豪宅区大多只能看到“一江”或“一河”,可以在一个户型里面“东望黄浦江,南看苏州河”的项目极少。这也将是静安苏河湾项目最大的亮点。

3、地块内有约4000方绿化
出让文件显示,地块内有约4000平方米中央公共绿地。
这是什么概念?静安苏河湾项目地块占地面积约26108.08平方米,中间加上约4000平方米绿地,即项目占地面积与中央绿地面积之比为6.5:1,几乎是围绕绿地而建。
这意味着,静安苏河湾项目不仅有“一江一河”滨水景观资源,还有成片绿地景观。碧波袅袅、疏密有致。

4、跨界天桥打通南北商业
出让文件要求有一条二层通道与南部商业相连,促进地区南北向慢行立体连通。
静安苏河湾项目南部为苏河湾万象天地,简单来说,就是可以直接从项目会所或项目自带商业散步至苏河湾万象天地。
5、周边豪宅林立圈层成熟
项目豪宅集聚,如华侨城苏河湾、中粮天悦、苏河湾润府等,目前已共同构筑静安豪宅居住圈层。周边无论是配套还是商业都较为成熟。
当前,苏河湾核心片区二手豪宅标杆价格在17-20.3万元/平方米左右,其中最贵的项目为2016年入市的华侨城苏河湾,均价20.3万元/平方米左右。

从该区域近几年二手房情况来看,2024年、2025年已连续两年成交套数上升,这说明,苏河湾核心片区存在着较为稳定的置换需求,同时目前拥有一线景观的标杆项目距今已近10年,因此,市场需要一个更有突破性的项目来引领整个区域的市场发展。
静安苏河湾项目肩负着改变“苏河湾核心区”格局的市场期待。


2025年住建部发布“好房子”国家标准《住宅项目规范》,2025年9月26日,上海规划与自然资源局发布《关于进一步促进本市住宅品质提升的规划资源若干意见》的通知。
2025年10月20日出让的静安苏河湾项目是“好房子”政策后苏河湾板块的第一个新规项目。
这意味着静安苏河湾项目能够突破原有“旧规”限制,做出更多的产品创新。
如在建筑高度和天际线方面,旧规要求100米以下按标准设计,100米以上需专项论证,而新规可局部提供建筑高度,同时新规明确构建“高低错落”的城市天际线。
在这样的调整下,整个项目无论是“堆坡筑景”还是“全域抬板”,都能更好地结合约4000平方米中央绿地,形成多层次多维度的社区景观。再加上超高层所拥有的“一江一河”视野,整体项目无论是视觉、采光、通风都能达到不同的设计高度。
又如,架空层、地下车库及风雨连廊,旧规架空层及风雨连廊无“不计容”政策,车库仅允许地下车库,而新规用作公共通道/休闲的架空层(净高>3米)不计容,用作通道风雨连廊不计容,内部停车库可设计在半地下室、底层架空层。
在这样的调整下,架空层、地下车库及风雨连廊也将成为项目的特色和亮点,如架空层可打造成多个不同风格和需求的多功能会所,地下车库也能从单一的停车功能延伸出其他用途,如通过下沉式会所+抬板设计将自然光和通风引入地下车,再加上风雨连廊环绕社区的步行系统,不仅能串联每一栋楼、每一个会所、每一处商业,还能提升整体社区的景观体验和出行氛围。
除此之外,静安苏河湾项目还包含文化、商业、风貌建筑等多业态。地块内有1处二级风貌建筑(延陵寄庐),地块外有陆氏民宅,中共三大后中央局机关历史纪念馆等3栋历史建筑,再加上约2.41万方文化及约0.52万方商业,形成“住宅+文化+商业+风貌”高阶组合,既能通过传承历史文脉,增加项目底蕴提升整体气质,还能完善整体社区配套。
在“好房子”政策推动下,未来谁能建设好房子,谁就能有市场。
静安苏河湾项目作为苏河湾核心区断供5年后首个“新规”项目,招商蛇口将其定位为“韬略江河,定局作品”。
2025年“招商好房子”品质标准引领全国,为市场带来了多个又好又叫座的产品,2026年我们期待招商蛇口还能为上海带来怎样的惊喜?
注:本文所有信息最终以官方发布为准,稿件发布于2026年2月5日,有效期至2026年3月3日。