文/深圳进深 李奕和
深圳龙岗市场,即将迎来又一个新盘。
就在今天(3月13日),“新世界188號”官微发布消息:
新世界188號3月14日即将向新启幕。
明天周六,项目营销中心、样板间将迎来开放。
新世界188號,备案名也叫新璟曜广场。
位于龙岗区横岗园山街道,地铁3号线永湖站旁。
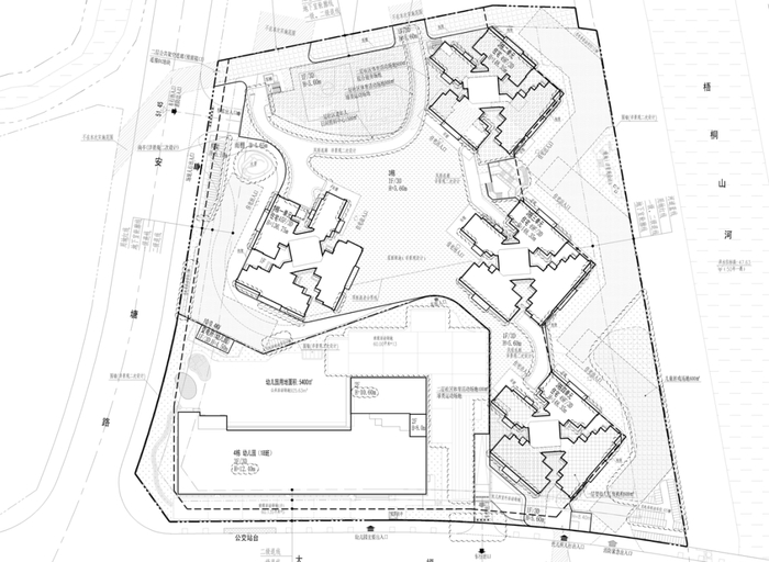
原是横岗188工业区城市更新单元。
整个旧改总占地面积约7.61万㎡,总建筑面积约65.4万㎡,共分6个地块开发。
是一个涵盖住宅、保障房、商业、写字楼、学校、幼儿园为一体的综合体大盘。

堪称深圳旧改界的“巨无霸”项目。将提供3000套住宅单位。
它也是新世界首进龙岗打造的第一个项目。
项目的开发主体为深圳市首席置业投资发展有限公司(以下简称“首席置业”)。
分别由深圳市慧城投资发展有限公司、深圳中致投资发展有限公司持有70%、30%。
最终由新世界发展实际控制。
首席置业的董事长、总经理为吕会才。
该人士也是新世界(中国)地产投资有限公司董事长。
新世界188號将首推的住宅是05地块,名为瑧悦。
05地块总占地面积约1.91万㎡,总建筑面积约17.94万㎡;
计容建筑面积约13.57万㎡,容积率6.37;
共由四栋总高45-49层住宅,以及一栋组成。

其中3栋1单元住宅45F,3栋二三四单元住宅49F。
4栋则是一所3层高18班的幼儿园。
首期4栋住宅全部为商品房,3梯7户设计。
共1142套房源。
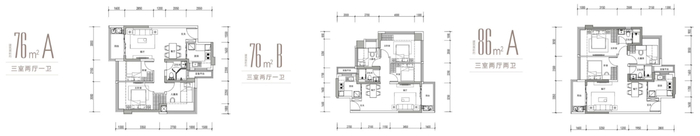
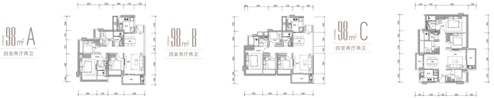
产品面积主要有76、88㎡的3房,96-115㎡的4房以及180㎡的5房。

户型图已经曝光。其中,比较受关注的点。
项目76㎡户型做了三房一卫,86㎡户型有三房两卫;

98㎡的户型则做到了四房两卫。

在龙岗横岗片区,也算是卷出了新高度。
可对比的是,附近在售盘。
名居山河里,三房两卫最小面积去到95㎡;
四房两卫最小面积则去到116㎡。
等于是差不多同等面积,多了一个房间。
不过,也不是说瑧悦就全是优势。
户型上,项目各个空间其实不算宽裕,比较紧凑。
另外,除了180㎡的大户型,项目其他户型。
新规产品常见的270°飘窗、大阳台等并没有很好的体现。
如果从整个小区看,瑧悦产品并没有做到全南向。
超高层,加上一层七户的设计,居住密度其实也不那么友好。
价格上,参考旁边名居山河里,均价3.4万/㎡,项目总价预计250万起。
作为港资房企,新世界发展近两年风浪不少。
在人事和流动性方面,传出过不少消息。
龙岗188工业区旧改,是它自2016年开始陆续布局深圳的多个旧改之一。
除了这个,其余项目还有西丽新围工业区及光明光侨食品厂等多个城市更新项目。
早一两个月,西丽新围工业区城市更新项目,已经正式备案,名为“湾上云启府”。
如今新世界188號也即将入市。
新世界在深圳的旧改,似乎已经开始陆续进入收成期。(进群了解更多深圳楼盘信息,请加微信SZjinshen。)