开发区又要上新了!
3月20日,宜禾欣园南街地块出规划了!
继上海建工地块之后,这是今年开发区第二个出规划的新盘。
01
去年6月份,宜禾以1.545亿底价摘得了津滨开(挂)2025-1号地块,成交楼面价为8946元/平米。

为近年来开发区地价最低的地块。
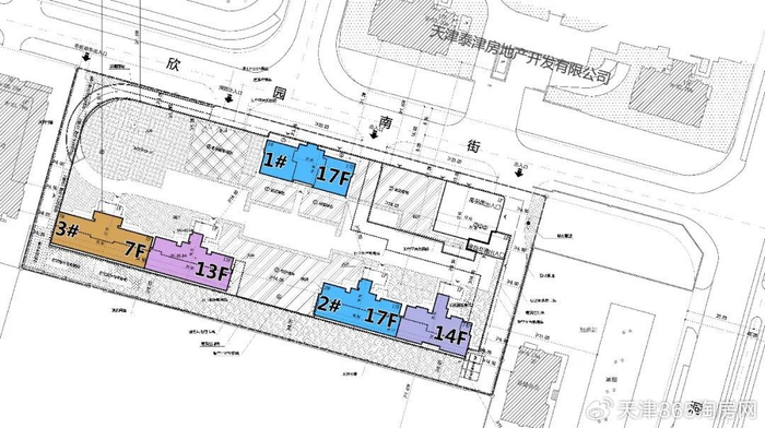
规划显示,该项目仅有3栋楼,产品为小高层+洋房。

全架空设计,小高层13、14、17层到顶,洋房仅有1个单元,7层到顶,一楼带小院。
小区主入口位于东北角,与组团绿地相连。
项目住宅面积为17269.8平米,奖励面积为345.4平米,住宅首层多样化利用为218平米,住宅地下空间增值利用608平米,容积率为2.0,共计有134户。

粗略计算,户均面积为138平米,主打改善大户型。
02
从目前来看,开发区出现的新盘,主要分为两大阵营。

一类是以建投滨海云阙、格调宝诗、绿城凤麟泰岳为首的豪宅化新盘。
位置优越,是全滨海的豪宅天花板。
包括后期要入市的天保一大街地块、格调浅羽花园G地块(联排+洋房),产品将非常亮眼。
另一类,就是适合普通改善关注的新盘。
例如,天保天成印象、宜禾欣园南街地块和上海建工地块。
这些新盘,虽然产品力没那么突出,但价格却很合适。
天保天成印象的小高层放风价2.6-2.7万/平米,目前已排卡300多组。
很适合开发区地缘改善关注。
可以说,今年,开发区靠“两大阵营”一起发力了!
*文章所提到的户型面积均为建筑面积。